BRAND NEW HIGH VOLUMETRIC CAPACITY WAREHOUSE IN HEATHWOOD

  • $1,107,925/p.a.
3 15 Seeana Place HEATHWOOD QLD 4110 Australia
For Lease
BRAND NEW HIGH VOLUMETRIC CAPACITY WAREHOUSE IN HEATHWOOD
3 15 Seeana Place HEATHWOOD QLD 4110 Australia
  • $1,107,925/p.a.

Overview

  • Industrial/Warehouse
  • Property Type
  • 6331
  • sqm
  • HZ162238
  • Property ID

Description

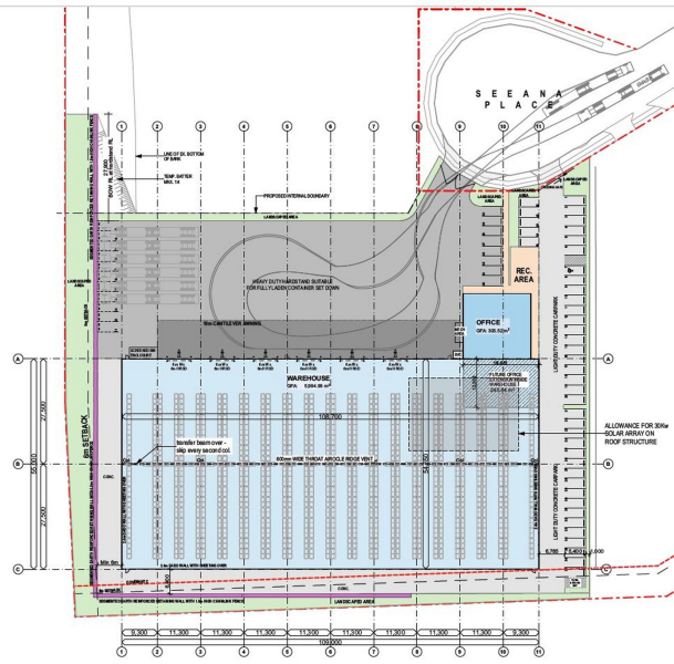
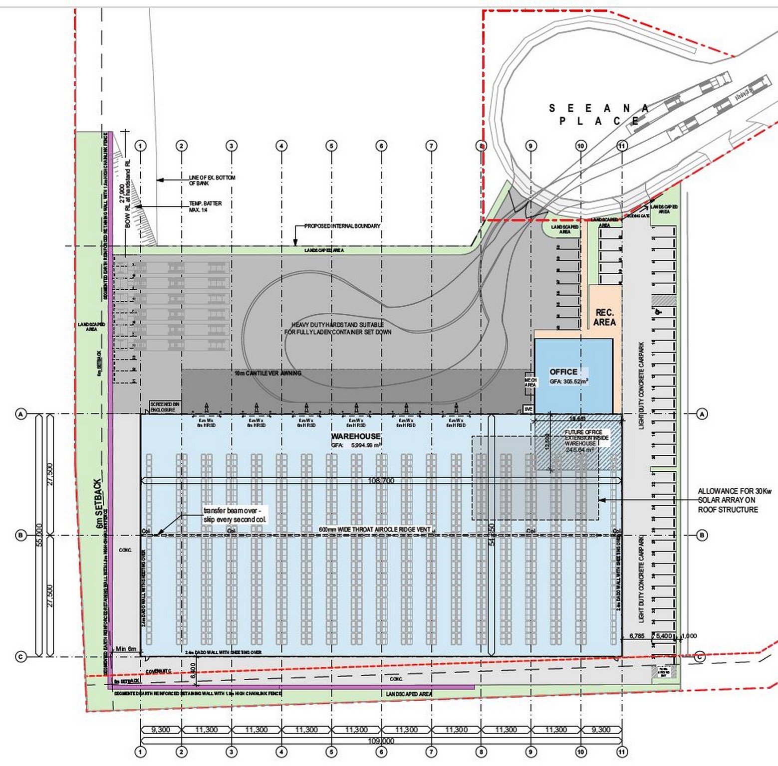
Located in the fast growing industrial precinct of Heathwood, with unbeatable access to major transport corridors via the Gateway and Ipswich Motorways, the M1 and Mount Lindsey Highway. Heathwood offers close proximity to the established industrial hubs of Acacia Ridge, Parkinson, Wacol and Carole Park. This brand new concrete tilt panel warehouse has corporate grade office space, multiple roller doors and massive awning for all weather loading. This facility includes heavy duty hardstand, suitable for B-Doubles, with dedicated carpark in a landscaped and well planned complex.

– Brand new high bay tilt panel 5,945sqm
– Generous internal height 11m+
– Corporate style office 300sqm
– 10m cantilevered awning 800sqm
– Total site area 14,485sqm
– ESFR sprinklered throughout
– Heavy duty hardstand & container setdown
– B-Double turning access & parking

For more information or to arrange an inspection, please contact FAL Property Group. John Andrew Ref: 42012

  • Address 3 15 Seeana Place
  • Suburb HEATHWOOD
  • State QLD
  • Post Code 4110

Compare listings

Compare
John Andrew
  • John Andrew

Property Appraisal Calculator